








M 28


M 28


M 28


Gros-œuvre fermé à partir de 184 260 €
(Hors TVA et frais d’architecte. Plans et photos non contractuels)
Clé sur porte à partir de 270 445 €
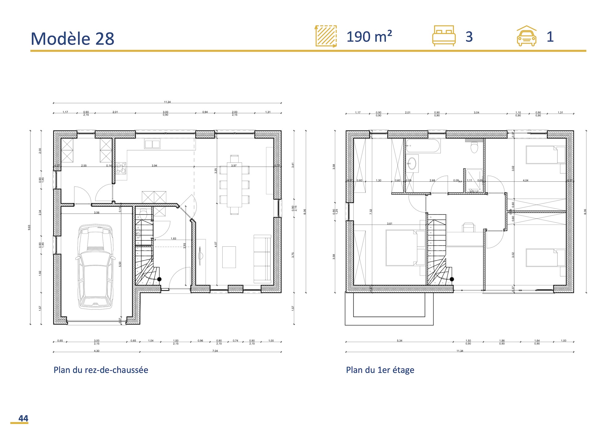
Superficie : 189,55 m2
3 chambres
1 garage

Gros-œuvre fermé à partir de 184 260 €
(Hors TVA et frais d’architecte. Plans et photos non contractuels)
Superficie : 189,55 m2
3 chambres
1 garage









