








M 46


M 46


M 46


Gros-œuvre fermé à partir de 218 126 €
(Hors TVA et frais d’architecte. Plans et photos non contractuels)
Clé sur porte à partir de 311 042 €
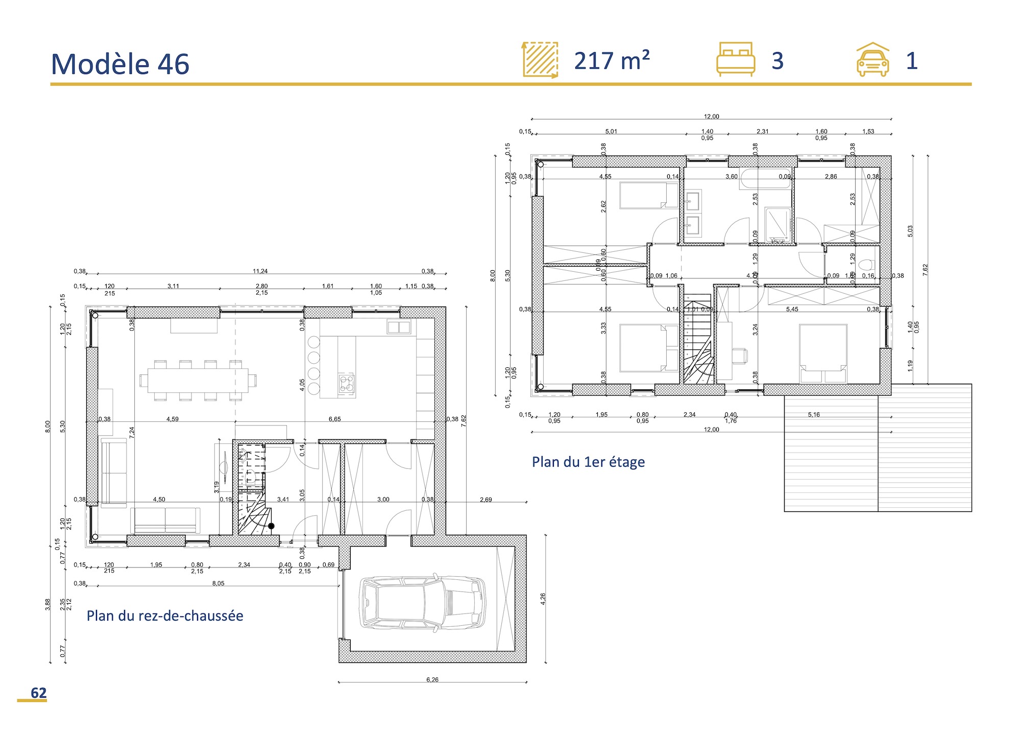
Superficie : 217,34 m2
3 chambres
1 garage

Gros-œuvre fermé à partir de 218 126 €
(Hors TVA et frais d’architecte. Plans et photos non contractuels)
Superficie : 217,34 m2
3 chambres
1 garage









